skRES - a Hong Kong village house refurbishment + renovation
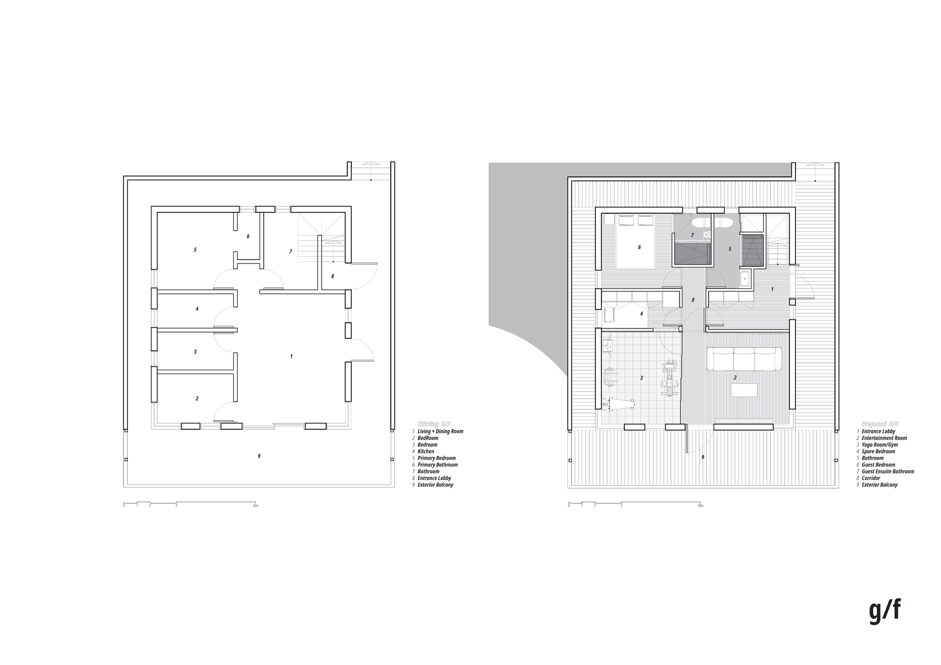
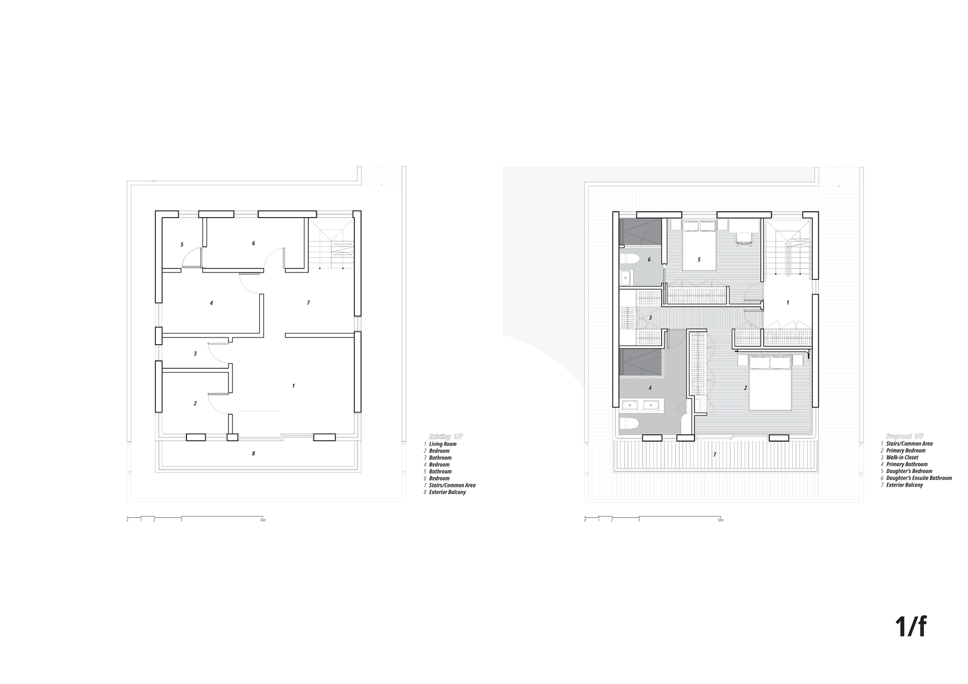
Layout - Originally split between two unrelated families, the three-storey village house was spatially divided, with separate entrances and little cohesion. The vision was clear: unify and open the structure, especially the upper floor, where kitchen, dining, and living converge into a single, luminous volume.
The top level—typical of Hong Kong village houses—receives the most daylight. The client requested coloured glass to introduce contrast within a largely monochrome interior. Gradating blues and yellows were selected, and where they overlap, green appears—light transformed into material through colour and orientation.
Exterior - The exterior continues the narrative of colour and memory. A custom lattice inspired by Mashrabiya patterns, referencing the client’s time in Dubai, provides both shading and identity. The façade is stratified into three tonal bands that grow lighter as they rise, visually lifting the mass and dematerializing its presence.
Balustrades in coloured glass echo the interior palette, catching sunlight and projecting animated bands of colour across the fading tones of the building—a quiet choreography of light, surface, and time.
The massing is stratified into three horizontal bands, each slightly receding in chromatic density as they ascend. This chromatic cascade allows the building to dematerialize toward the sky—an optical strategy that balances mass and lightness, density and breath. The structure becomes lighter as one moves upward—both physically and perceptually.
Coloured glass appears again in the balcony balustrades—animated by the sun, shifting with the day. These transparent bands act almost cinematographically, projecting colour across the building’s muted surfaces and dissolving the line between architecture and atmosphere.
design = half AND half Studio
client = withheld
location = Hong Kong, China
year = 2022-23
status = completed
programme = residential renovation + facade concept
size = 175 sq. m.
*2024 IDA Awards - Interior Project Development (Residential) = Honorable Mention
*2024 LIV Hospitality Awards - Interior Renovation (Living Space) = Honorable Mention



















